Koningsplein

Prijs : € 676

Maastricht

Appartement


Koningsplein Ga naar Huurstunt-nl

voor € 676

Bekijk alle informatie en beschikbaarheid bij Huurstunt-nl.

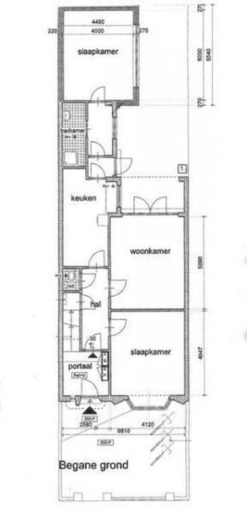
TE HUUR - 2 STUDENTENKAMERS
2 Kamers te huur in ruime benedenverdieping met tuin op het zuiden vlakbij het station en de A2.

Perfecte ligging: in luttele minuten ben je op de autoweg, bij het station en in het populaire stadsdeel Wyck. Maar bove ....



Eigenschappen
Naam Koningsplein
Maastricht
Type Appartement
Aanbieder Huurstunt-Nl
Oppervlakte 24
Aantal kamers 3
Postcode 6224EB