Rijksweg Noord

Prijs : € 895

Sittard

Appartement


Rijksweg Noord Ga naar Huurstunt-nl

voor € 895

Bekijk alle informatie en beschikbaarheid bij Huurstunt-nl.

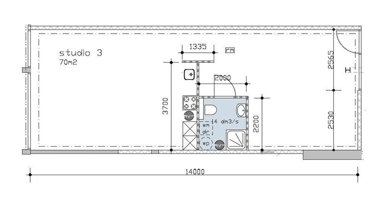
PRACHTIGE STUDIO MET 1 SLAAPKAMER 1C-3
Direct aan het centrum gelegen, op de hoek van Rijksweg Noord en Voorstad, ligt dit nieuwe prachtige appartement van alle luxe voorzien en ontwikkeld met optimaal wooncomfort en hoogwaardig afgewerkt.


Het ....



Eigenschappen
Naam Rijksweg Noord
Sittard
Type Appartement
Aanbieder Huurstunt-Nl
Oppervlakte 70
Aantal kamers 2
Postcode 6131CH