Kamer In Edam-Volendam. 25 Min Van A'damcs

Prijs : € 470

Edam

Onbekend


Kamer In Edam-Volendam. 25 Min Van A'damcs Ga naar Huurportaal-nl

voor € 470

Bekijk alle informatie en beschikbaarheid bij Huurportaal-nl.

Nette kamer in gemeubileerd huis plaats gemeente Edam-Volendam.

80m2 woonruimte. 25 min van A'damCS
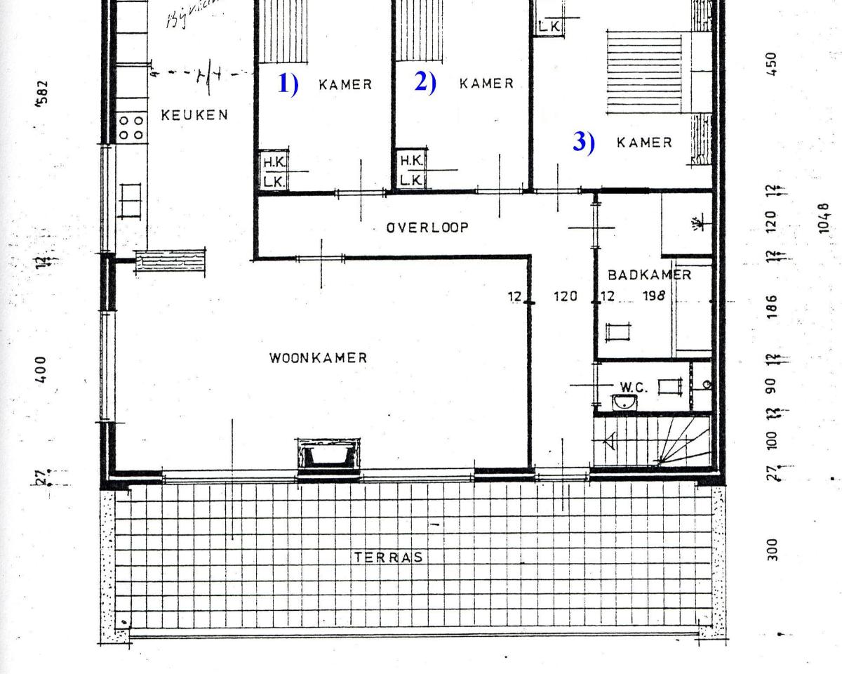
Kamer in gemeubileerd huis van alle gemakken voorzien. Keuken, bijkeuken (voorzien van wasmachine, combi-magnetron, vaatwasser en koelkast) ruime woonkamer (voorzien van werkenden tv en WiFi) en terras. Badkamer met douche en ligbad alsook 2e toilet.

Woning is voormalig bedrijfs pand met bovenwoning gelegen aan rand van Edam op bedrijven terrein. Achter een ruime tuin welke buitenom bereikbaar is. Woning zelf is goed geïsoleerd en na kantoortijd en in het weekend een oase van rust. Bushalte goede verbinding met A'dam en Hoorn op loopafstand.

25 min van A'dam CS. Vanaf busstation Edam rijden ook nachtbussen op do, vr za en zo. Eigen parkeerruimte voor de deur.
Op plattegrond is het kamer nr 2. Er zijn in totaal 3 kamers te huur en je deelt momenteel de woonruimte met twee andere bewoners.


Mocht je interesse hebben of meer willen weten stuur dan even een
Totale huurprijs € 470 incl. g/w/e.



Kaart

Eigenschappen
Naam Kamer In Edam-Volendam. 25 Min Van A'damcs
Edam
Type Onbekend
Aanbieder Huurportaal-Nl
Oppervlakte 12
Aantal kamers 1
Postcode 1135 GA