Verlengde Hereweg

Prijs : € 800

Groningen


Verlengde Hereweg Ga naar Directwonen-nl

voor € 800

Bekijk alle informatie en beschikbaarheid bij Directwonen-nl.

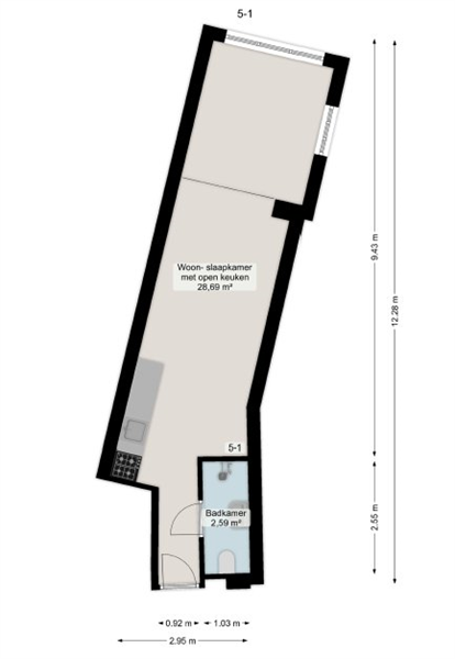
Mooie studio aan de Verlengde Hereweg! Deze studio is gelegen in Helpman-West.

In de directe omgeving bevindt zich onder andere de Albert Heijn en het centrum van Groningen ligt op slechts 8 minuten fietsafstand. Indeling; De studio bevindt zich op de begane grond. Je komt binnen in de woon-slaapkamer met open keuken. Bij binnenkomst zit direct rechts de badkamer.

De keuken is voorzien van een vaatwasser, combimagnetron, afzuigkap, gaskookplaat en een koelkast. De badkamer beschikt over een douche en wastafel. Huurprijs en borg: De huurprijs bedraagt €800,00 exclusief. De huurder is zelf verantwoordelijk voor het afsluiten van de contracten voor de overige nutsvoorzieningen.

De waarborgsom bedraagt één maand huur. Let op: deze woning komt in aanmerking voor huurtoeslag.Beschikbaarheid en huurperiode: De studio is per 1-04-2026 beschikbaar. De huurovereenkomst wordt aangegaan voor onbepaalde tijd.Interesse verstuur u bericht..



Kaart

Eigenschappen
Naam Verlengde Hereweg
Groningen
Aanbieder Directwonen-Nl