Apartment For Rent In Ds. Talmasingel 101- 9251ER Tytsjerksteradiel Burgum Burgum

Prijs : € 850

Burgum

Onbekend


Apartment For Rent In Ds. Talmasingel 101- 9251ER Tytsjerksteradiel Burgum Burgum Ga naar Huurportaal-nl

voor € 850

Bekijk alle informatie en beschikbaarheid bij Huurportaal-nl.

In het moderne appartementencomplex Klaverkamp bieden wij dit keurige 3 kamer-appartement te huur aan, gelegen op de eerste woonlaag met een lift.

Het complex is gebouwd in 2001 en bevindt zich op korte afstand van het centrum van Burgum met diverse winkels, voorzieningen en openbaar vervoer binnen handbereik.
Het appartement maakt deel uit van een modern complex van in totaal 39 appartementen en is geschikt voor elke doelgroep, voor wie comfortabel en centraal wil wonen.
Alle woningen zijn voorzien van een eigen buitenruimte. Zo hebben de appartementen op de begane grond een eigen terras en de woningen op de eerste en tweede verdieping een balkon.
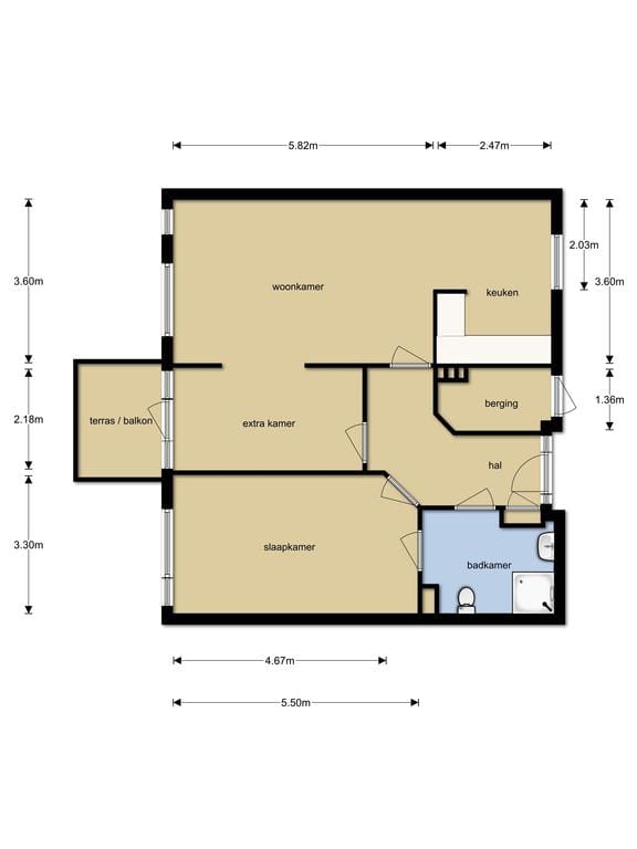
Indeling appartement:
Via de centrale entree en galerij kom je al dan niet met de lift bij het appartement.
Je komt de woning binnen via de ruime hal met garderobe.

Het appartement heeft een ruime woonkamer met een half open keuken met een L-vormige keukenunit. Grenzend aan de woonkamer is een extra kamer, die als eetkamer kan dienen. In deze kamer bevindt zich ook de deur die toegang geeft tot het balkon. De slaapkamer is aangrenzend.

Vanuit de slaapkamer en vanuit de hal is er toegang tot de badkamer. Met ca. 8 m2 een ruime badkamer met toilet, wastafel en een douche.
Naast de eigen entree is een eigen berging die via de galerij bereikbaar is. Beneden is een gezamenlijke fietsenberging.
Kenmerken:
Bouwjaar: 2001 ca.

76 m2 wonen
Gelegen op de eerste woonlaag
Voor elke leeftijd geschikt
Lift aanwezig in het complex
Energielabel B
Verzorgd en modern complex
Voldoende parkeren op eigen terrein
Burgum is een dorp centraal gelegen in Noord Oost Fryslân. Goed ontsloten naar de snelwegen via de Centrale As en de A7. Het is een fijne plek om te wonen met het centrum op loopafstand. Je vindt er een gevarieerd winkelaanbod, met winkels en supermarkten, diverse sportvoorzieningen en ook op het gebied van cultuur is er veel te doen.
De huur is exclusief € 50,00 servicekosten en éénmalige waarborgsom ad.

€ .
U dient minimaal 3,5 keer de huurprijs . te verdienen. De minimale huurperiode is 2 jaar.
Tot slot:
Deze presentatie is met zorg samengesteld. Desondanks kunnen aan deze presentatie geen rechten worden ontleend en aanvaardt de makelaar of zijn opdrachtgever geen enkele aansprakelijkheid voor enige onvolledigheid of onjuistheid van de in deze presentatie verstrekte informatie.

Mocht deze presentatie of andere verstrekte informatie vragen oproepen, dan nodigen wij je van harte uit deze onder onze aandacht te brengen. Lees de volledige omschrijving.



Kaart

Eigenschappen
Naam Apartment For Rent In Ds. Talmasingel 101- 9251ER Tytsjerksteradiel Burgum Burgum
Burgum
Type Onbekend
Aanbieder Huurportaal-Nl
Oppervlakte 76
Aantal kamers 2
Postcode 9251 ER