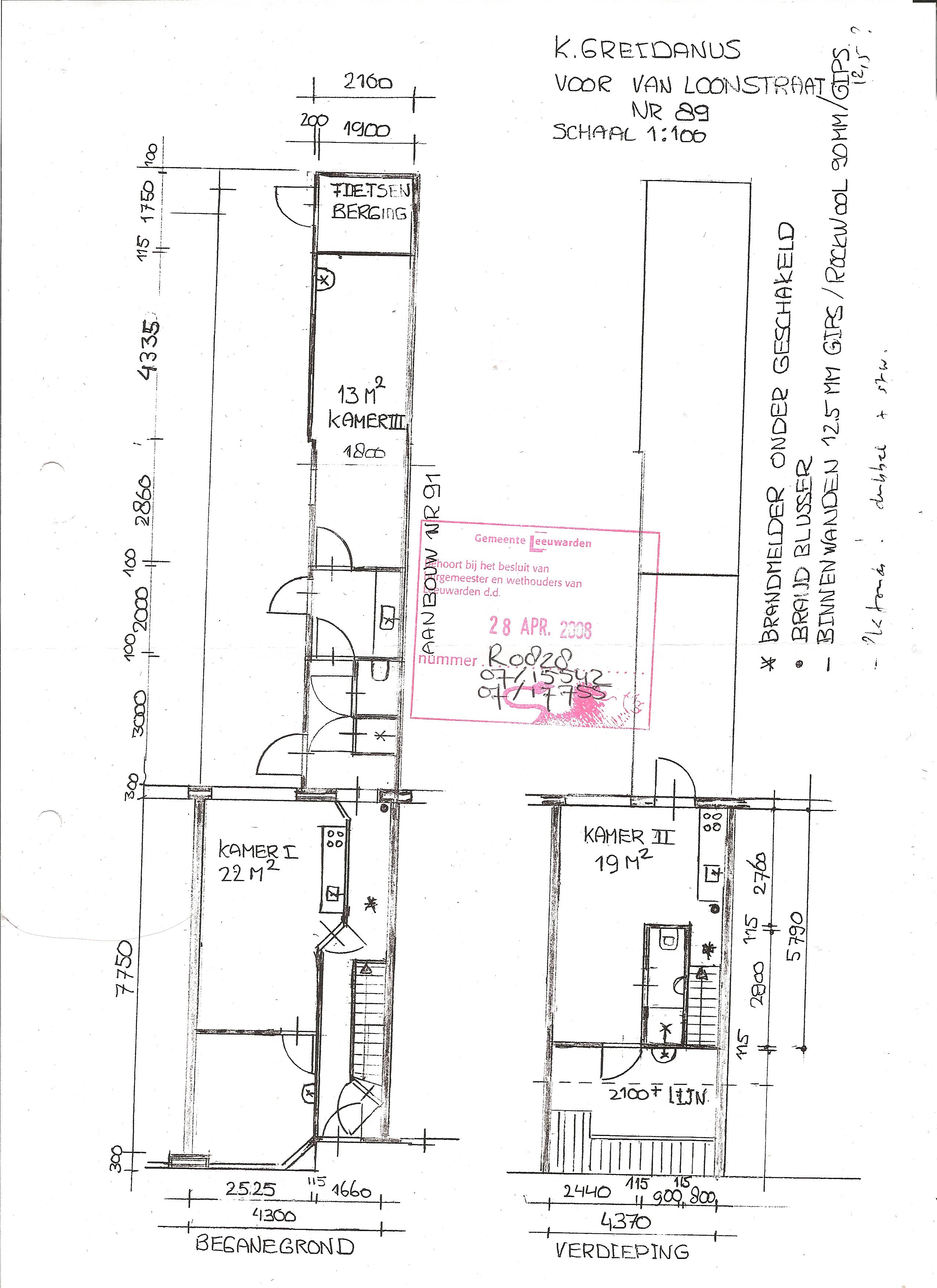
Kamer Met Eigen Keukenblok/ Wastafel

Prijs : € 325

Leeuwarden

Onbekend


Kamer Met Eigen Keukenblok/ Wastafel Ga naar Huurportaal-nl

voor € 325

Bekijk alle informatie en beschikbaarheid bij Huurportaal-nl.

Komt vrij per 28 februari 2026
Kamer 14 m2 met eigen keukenblok/ eigen wastafel
glasvezel internet/tv
Woning aan doodlopend straatje.


Gemoedelijke sfeer
Begane grond achterzijde met dubbele tuindeuren naar achter terras.
Eigen keukenblok/koelkast/kooktoestel/afzuigkap.
Wanden glasvezelbehang en alles gesausd en geschilderd.
Incl glasvezel internet en kabel tv.
Waarborg 750 euro.
Toilet op begane grond en verdieping.
douche beneden.
CV met thermostaat kranen.
Bel gerust of.



Kaart

Eigenschappen
Naam Kamer Met Eigen Keukenblok/ Wastafel
Leeuwarden
Type Onbekend
Aanbieder Huurportaal-Nl
Oppervlakte 14
Aantal kamers 1
Postcode 8932 HK