Private Studio In Gouda, Westerkade

Prijs : € 722

Gouda

Onbekend


Private Studio In Gouda, Westerkade Ga naar Huurportaal-nl

voor € 722

Bekijk alle informatie en beschikbaarheid bij Huurportaal-nl.

Studio / kamer te huur in Gouda
Beschikbaar per:
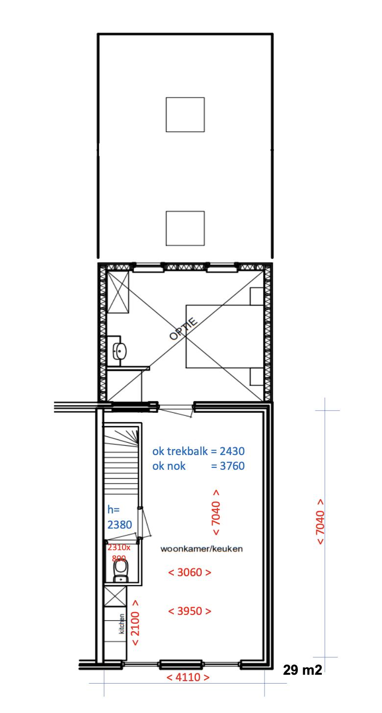
Oppervlakte: 29 m2
Huur (kaal): €722,10
Nuts (G/W/L + internet): €260,-
Totale huur: €982,10 all inclusive
Maximaal 2 personen
Geen huisdieren
Omschrijving
Leuke en praktische studio op een eigen verdieping, gelegen tegenover de Lidl.

De studio beschikt over een eigen keuken en privétoilet.
De douche wordt gedeeld met slechts 1 andere studio.
Daarnaast is er een gedeelde wasmachine en droger aanwezig.
Het pand is rustig en netjes, met momenteel twee andere studio's bewoond door Poolse werkende huurders. Het betreft een ordelijk huis met hard werkende en rustige bewoners, geschikt voor werkenden of een stel..



Kaart

Eigenschappen
Naam Private Studio In Gouda, Westerkade
Gouda
Type Onbekend
Aanbieder Huurportaal-Nl
Oppervlakte 29
Aantal kamers 1
Postcode 2802 SG