Te Huur: Appartement Laag Bolwerk 45 X In Bolsward

Prijs : € 727

Bolsward

Onbekend


Te Huur: Appartement Laag Bolwerk 45 X In Bolsward Ga naar Huurportaal-nl

voor € 727

Bekijk alle informatie en beschikbaarheid bij Huurportaal-nl.

Beschrijving

Om in aanmerking te komen voor deze woning kunt u zich alleen via de rode knop op de woningpagina op de website van fryslânhomes (.frl) aanmelden.


Keurig appartement met eigen vaste parkeerplaats op het binnenterrein. De woning kijkt vanuit de derde verdieping uit over de Elfstedenroute en een mooi stuk Bolsward.
Het centrum met horeca en winkels is op loopafstand bereikbaar.
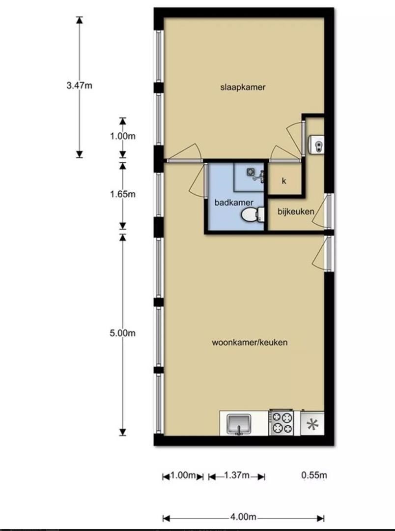
Indeling: de woonkamer heeft een open keuken die is voorzien van diverse inbouwapparatuur, badkamer met douche, toilet en dubbele wastafel.

Zeer ruime slaapkamer met inbouwkast voor extra opbergruimte. De extra berging met wasmachine-aansluiting bevindt zich op de gang.
Bijkomende kosten: parkeerplaats €45,- per maand, servicekosten €15,- per maand, afschrijving stoffering €55,- per maand..



Kaart

Eigenschappen
Naam Te Huur: Appartement Laag Bolwerk 45 X In Bolsward
Bolsward
Type Onbekend
Aanbieder Huurportaal-Nl
Oppervlakte 35
Aantal kamers 3
Postcode 8701 KT